
户型改造布局优化能做些什么,能给住宅空间带来什么变化?
从我们的一个实际案例说起吧。
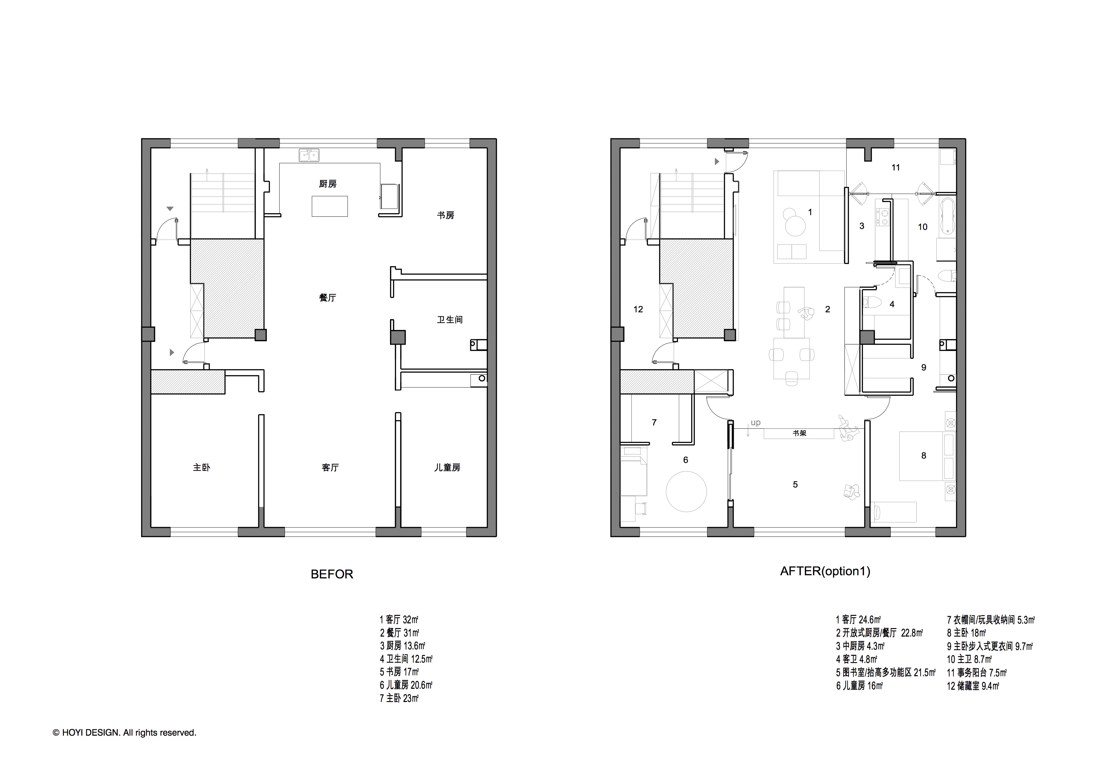
这是我们正在做的一个吉林的住宅空间项目,建筑面积超过200平方米的公寓单元,但只是一个基本的
三房一卫的功能配置,甚至还不能完全满足所有的生活需求,例如缺少晾晒功能。而每个空间都很大,
但是却功能单一,例如23平米的主卧却没有配备独立的卫生间和衣帽间。而面对一些对于生活品质更高
的需求,更是没有考虑,例如让厨房占据最好的北面窗户,用橱柜挡住了最好的景观。客户是三口之
家,小朋友成了生活的重点,如何更好的亲子互动是他们非常关注的点。
上图是北面窗外的景观
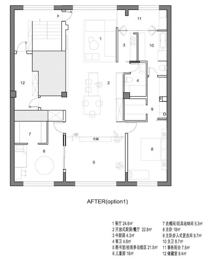
上面是我们根据这些问题,做的空间优化方案(option1)
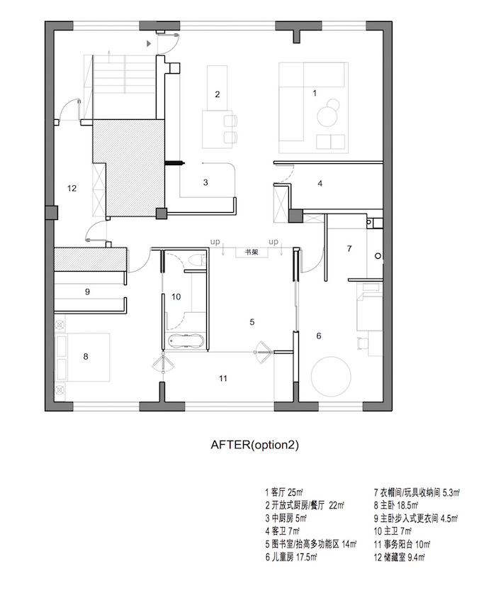
下面是这个案子的另一个方案(option2)
关于option2
在城市化速度飞快的中国,确实短时期内建设了大量的新建筑,由于速度太快,仅仅满足了某些数据上的指标就
上,还没有来得及去思考居住其中的我们的生活品质,于是产生了很多不合理的户型。
希望可以通过我们认真的反思审视,通过再设计,去慢慢改善这一切吧。
家,从空间开始。
——意晖家
-THE END-
环境 | 都市 | 建筑 | 景观 | 室内 | 空间 | 灯光 | 家具 | 陈设 | 材质 | 生活方式