
项目位于上海长寿路,常德路附近的居住小区内。在Apple工作,独立干练的都会女性客户。要求设计简洁大气,改善厨卫空间,不参与施工过程,拎包入住。

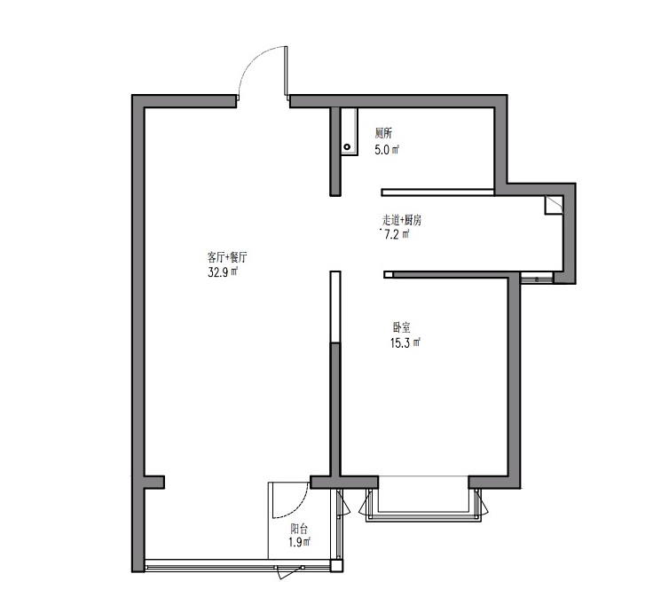
▲原始房型,一房两厅一卫,一梯三户的中间套,只有朝南的三处采光。
厨房面积局促,卫生间没有自然通风采光。
晾晒阳台兼洗衣间与客厅混合在一起。

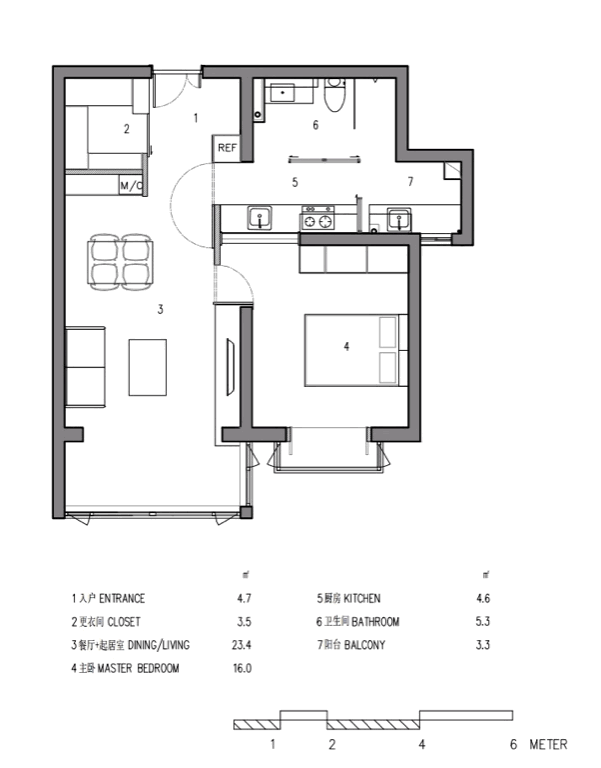
▲洗衣间兼晾晒阳台移到最小的南向窗户处,增大了面积,完善其功能。
厨房和卫生间通过这个洗衣间解决通风采光问题。
客餐厅合并了原来的洗衣间兼晾晒阳台,优化了视野和采光。


▲客厅合并了原洗衣间,重新规划了窗户的分隔,优化了视野和采光。

▲原本客厅与洗衣间兼晾晒阳台混合在一起。



▲厨房通过晾晒工作阳台解决通风采光问题。



▲卫生间通过晾晒工作阳台解决通风采光问题。

▲原本没有自然通风采光的卫生间。

▲客餐厅增加了储物间及第二厨房,合理的收纳,让空间易于打理,也让空间的进深比例更适宜。

▲玄关旁的衣帽间,第二厨房。


▲玄关配置了鞋柜,全身镜,步入式收纳间

▲顶天立地的移门

▲衣帽间内部

▲原来此区域作为客餐厅的一角。

▲增设的第二厨房,
解决厨房空间不足的问题,也满足水吧和早餐吧的功能

▲管线机是个值得推荐的厨电,烧水喝水就不用来回厨房跑了,可以在餐厅和起居空间解决了。
管线机的进水从厨房的净水机处预埋两分管,管线机的电源插座留在背面的储藏间,从正面看,管线机就干干净净,什么暴露的管线都没有。




▲用家具和顶天立地的门来分隔空间,让整个空间更加开放灵活。
该项目改造重点在洗衣间的移位和玄关的布局,前者不但解决了客户改善厨卫空间的需求,也大大的提高了客厅的空间品质,后者为客户的生活带来很大的便利性。
城市更新面临着越来越多的改造项目,希望我们的设计可以诚实的解决客户的问题,并符合意晖家的空间美学。
项目信息:
项目名称:C2 | 为都会女性设计的现代公寓
项目面积:建面80㎡
项目地点:上海普陀
设计公司:Hoyi 意晖建筑设计(上海)有限公司
设计团队:徐春晖,曹吉伟,吴航
施工团队:张小忠,张炳华团队
灯 具:JOJO
木 饰 面: KD
地 板:Lamett
摄 影:UNITU
更多改造案例:
- THE EDN -

环境 | 都市 | 建筑 | 景观 | 室内 | 空间 | 灯光 | 家具 | 陈设 | 生活方式
微信服务号 Wechat : Hoyi意晖