
设计师的父母在25年前亲手建造的这座房子,一砖一瓦都带着回忆。现在两位退休老人希望用有限的积蓄自己承担这笔改造费用,把房子变成一个适合养老的住宅,方便自己的生活起居,也方便子女可以常回家看看。
设计师需要把有限的预算都用在刀刃上,真正解决问题,并且希望设计带有一定的温度,让这个房子能承载全家人的回忆。
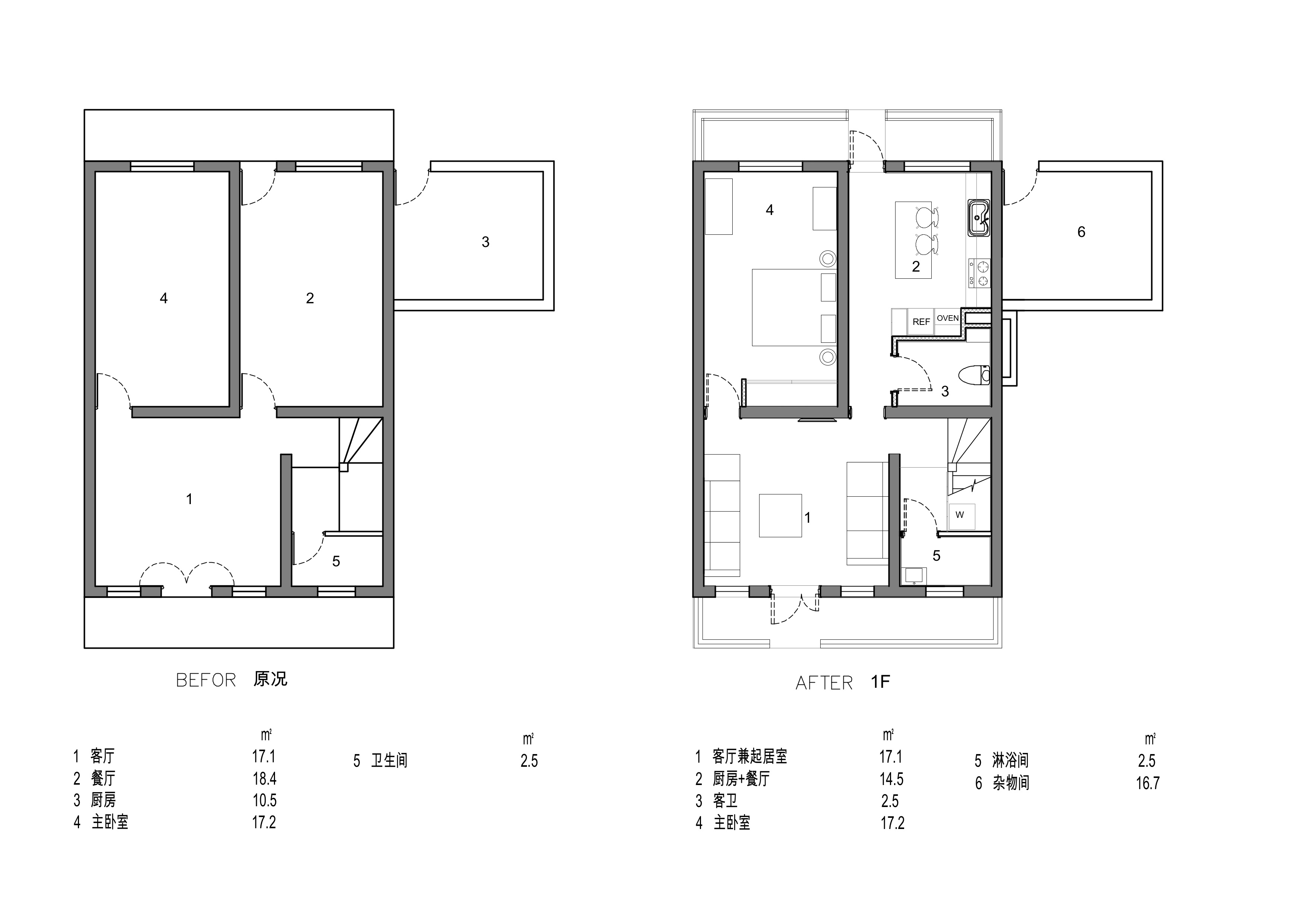
老房子面临着诸多问题:

一楼的返潮导致墙面脱皮严重。
一楼采光不好。
位于楼梯间下的卫生间兼浴室过于狭小。
厨房独立于建筑之外,使用不便。
没有一个可供三代人相处的起居空间。
二楼没有卫生间,留宿非常不方便。
原本的木框门窗老旧变形严重

改造后的房子,一楼作为老两口日常起居的空间,设置了可同时容纳三代人共同相处的起居室,餐厨一体的开放厨房,一间卧室,一个独立的厕所和一个独立的浴室。
起居室

▲防潮处理:一楼墙面材料用了当地容易采购的白色PVC护墙板,主墙面用了大尺寸的灰色墙砖,一直延伸到通往二楼的楼梯间。

▲改善采光:起居室换了带窗门,双层窗帘又可以照顾了室内的私密性。


▲水磨石地面:是保留的25年前刚建造时的地坪,作为一体的地面材料,丝毫没有裂缝,越擦越亮,历久而弥新。
厨房


▲餐厨一体:原餐厅内新增厨房变身餐厨一体,老两口在同一个空间内烹饪,就餐,整理,非常方便。烹饪的时候转个身就可以把做好的菜端上桌,吃完饭转个身就可以把桌上的碗筷放进水槽。


▲厨房灯光:吊柜灯带照亮台面,吊顶灯带照亮整个空间,餐桌上方射灯照亮桌面和食物。
卫生间


▲无障碍厕所:在一楼增设了一个无障碍厕所,兼作为客卫。
对于起身困难的老年人,这个厕所是非常实用的,夫妇俩90多岁的老母亲就非常喜欢使用这个厕所。
一楼浴室


▲楼梯下方的浴室,外面就是隐藏安装的洗衣机,洗完澡的脏衣服可以直接扔进洗衣机,非常便利。浴室里也为老人安装了一些安全扶手。
一楼卧室


楼梯间


二楼设置了两间卧室和一个多功能厅,新增了一个干湿分离的卫生间,方便偶尔回来的子女留宿,设计师的父亲喜爱书法,多功能厅平时可以作为书法室使用。
二楼卧室1



▲门窗:借着更换建筑门窗的机会,把原本的台上窗改成了落地玻璃移门,与另一个卧室共享一个阳台,采光和动线都好了,不增加费用改善了空间品质。
二楼卧室2



▲床:设计师在二楼的小卧室保留了父母40多年前的婚床,床尾可以搭衣服,四边的柱子有留孔,方便夏天安装蚊帐,当年住房困难时期,这是一家四口人睡过的床,充满回忆。
二楼卫生间


夫妇俩承担了整个装修的花费共计14万元,并提供现场施工的后勤保障,设计师承担了远程的设计指导工作,设计师的姐姐现场执行担当。就如当年夫妇俩亲手建造房子一样,在2018年,全家人一起携手亲自改造完成了这个家。也正因为有家人的共同参与,家的设计变得更有温度。
项目信息:
项目名称:退休夫妇的养老住宅 | 自建宅的现代改造
项目面积:建面140㎡
项目地点: 湖北黄冈
设 计: 徐春晖
执 行: 徐玉屏
灯 具:JOJO
家 具: IKEA
洁 具: HCG
厨 电: Robam/Galanz/Haier/Midea
电气面板: 施耐德
摄 影: 意晖家
更多改造案例:
- THE EDN -

环境 | 都市 | 建筑 | 景观 | 室内 | 空间 | 灯光 | 家具 | 陈设 | 生活方式
微信服务号 Wechat : Hoyi意晖