
项目位于上海闵行,通过前客户介绍过来的,在谷歌工作的Karen和刚上大学的女儿,共同生活在这个公寓。第一次会面,Karen就向设计师Eddie展示了她收藏的十多件老家具,并表示要把它们留在公寓里。

▲原户型厨房空间狭小且封闭,收纳空间严重不足,晾晒位于客厅阳台,影响视野。(基本上都是老公寓的通病。)

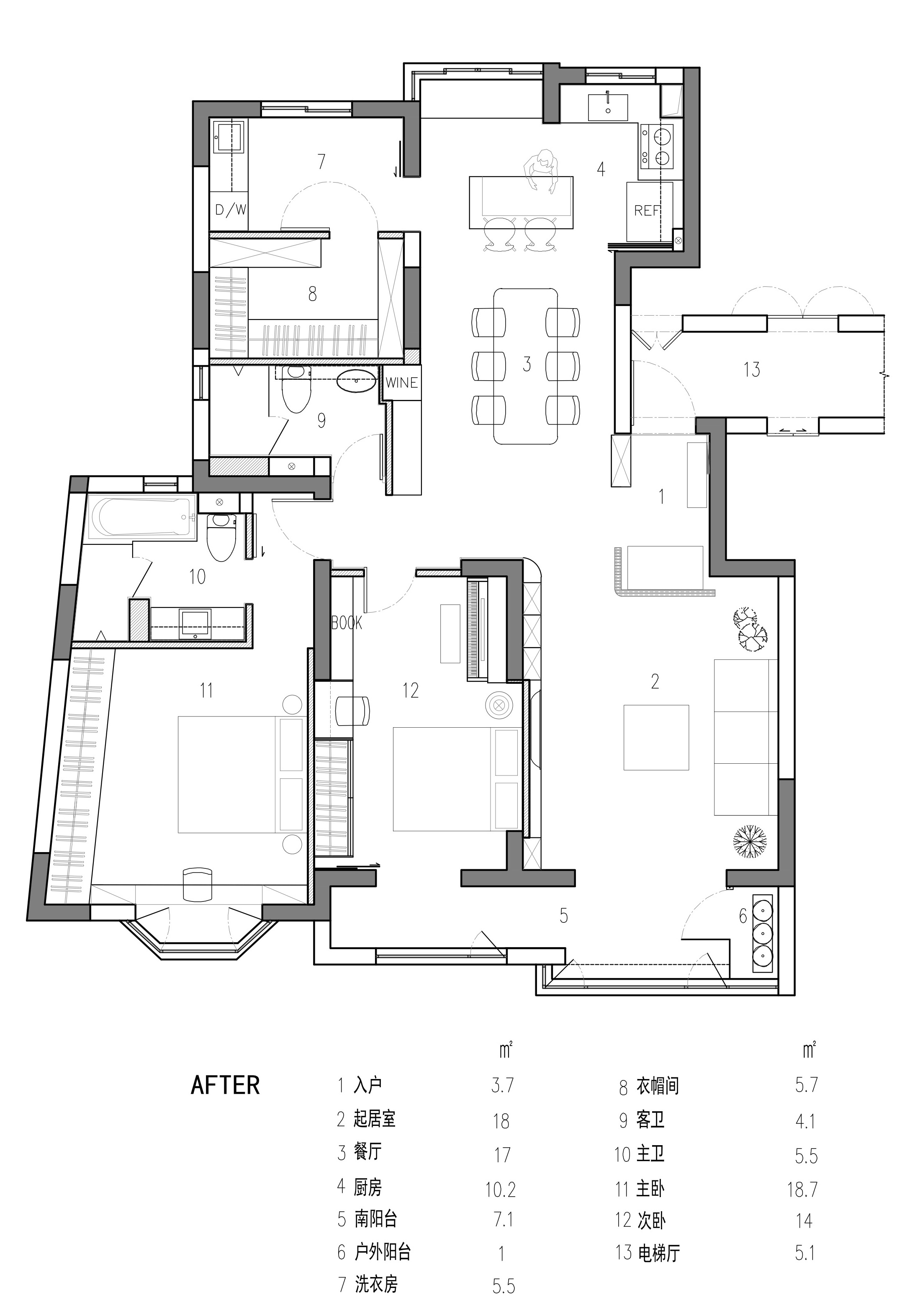
▲改造后,拆除了厨房的隔墙,增加了中岛台,形成了开放的餐厨空间。紧邻厨房布置了洗衣房,并与独立的储物间串联,形成了合理的家务动线。拆除了次卧阳台和客厅阳台之间的隔墙,形成了更为灵活的环形动线。

▲玄关配置了鞋柜,全身镜,换鞋凳。

▲门套和电表箱门,通过黑色木饰面整合成为一个整体。

▲玄关摆了一件“重量级”的老桌子,让这个现代的都市公寓带上居住者的气息。

▲玄关与客厅错落布置形成了一个间隙,为空间增加了灵性。

▲为每个空间都定制了足够多的柜子,就近的收纳更容易让空间保持大气整洁。

▲客厅与餐厅错落布置,交界处运用了弧线的处理,柔化了两个空间的界限。

▲走廊空间。

▲中岛台成为母女厨艺互动的场所。

▲橱柜从左至右配置:米箱,微波炉,烤箱,分类垃圾桶,净水器,垃圾处理器,碗篮锅篮,调味品篮。

▲晾晒阳台兼洗衣房(照片是从厨房看过来的角度),和厨房、独立储物间串连在一起,形成了比较好的家务动线。

▲餐厨一体的布局,和之前很多案例一样,餐厅配备了酒柜和餐边柜,可以布置咖啡机等小厨电。

▲新老家具

▲餐边柜

▲次卫

▲主卫改造后,除开保留原卫浴三件套:洗面台+浴缸+马桶,新增了使用频率更高的独立淋浴间。

▲脸盆龙头,浴缸龙头,花洒龙头都是采用入墙式,方便日后使用及维护。

▲选用的一体式智能马桶。

▲淋浴房用的壁龛置物。
该项目改造重点在厨房布局的调整,大家饮食习惯的改变,让开放式的厨房布局成为越来越多人的选择,这样的布局能够增进家人的互动,在这段非常时期,客户母女俩的朋友圈基本都是围绕这个空间展开。
城市更新面临着越来越多的改造项目,希望我们的设计可以诚实的解决客户的问题,并符合意晖家的空间美学。
项目信息:
项目名称:W | 为母女改造的都市公寓
项目面积:建面150㎡
项目地点:上海闵行
设计公司:Hoyi 意晖建筑设计(上海)有限公司
设计团队:意晖,吴航
施工团队:张小忠,张炳华团队
灯 具:JOJO
木 饰 面:KD
地 板:Lamett
更多改造案例:

项目 | C2为都会女性改造的现代公寓, 借由洗衣间改善厨卫空间
- THE EDN -

环境 | 都市 | 建筑 | 景观 | 室内 | 空间 | 灯光 | 家具 | 陈设 | 生活方式
微信服务号 Wechat : Hoyi意晖